Apartment · New Build Orihuela Costa. Alicante

REF:NB-35922
469.000€

Apartment · New Build Orihuela Costa. Alicante

469.000€

Overview

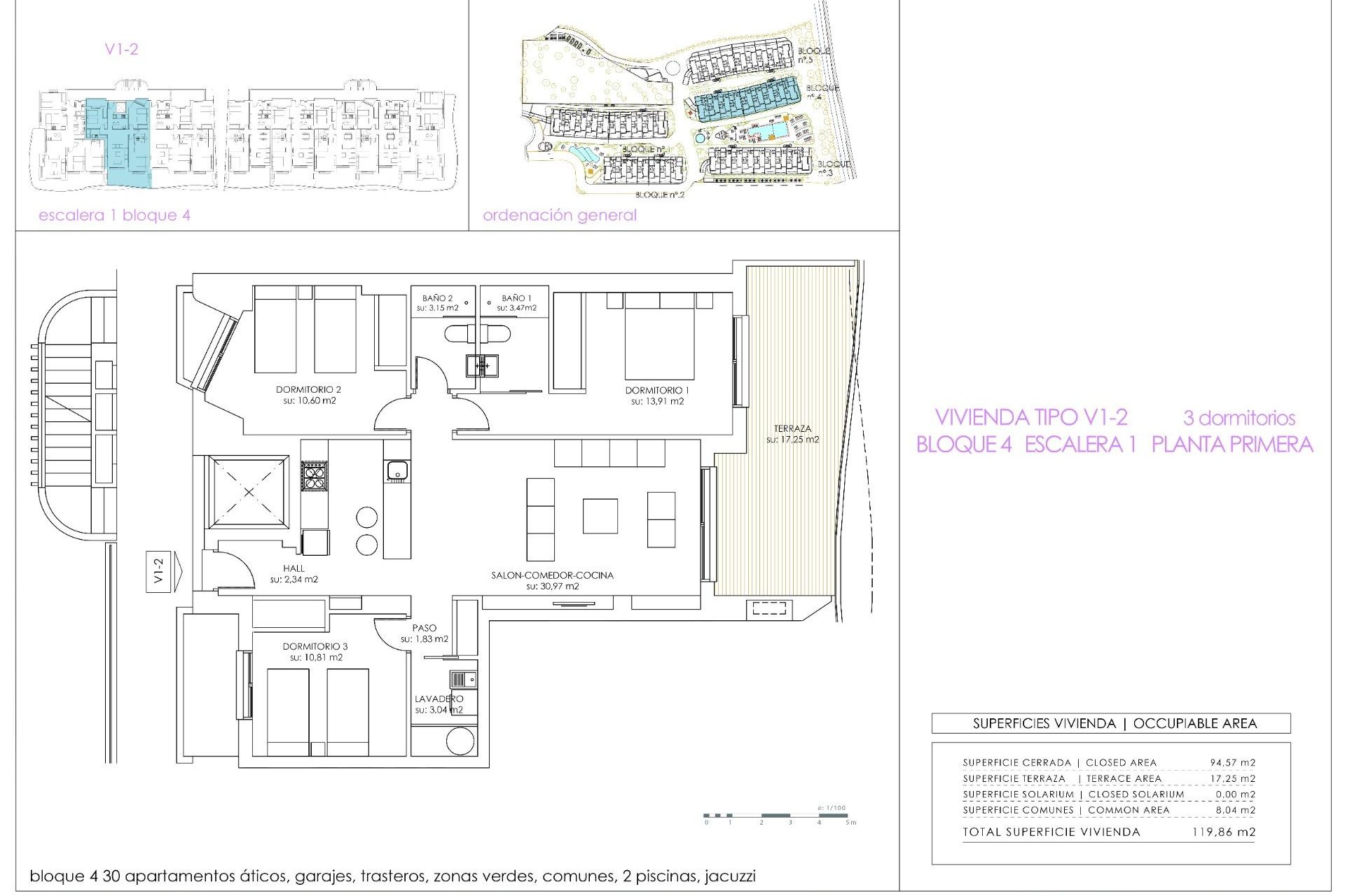
  • 94m2
  • 3
  • 2
  • Yes

Description

NEW BUILD RESIDENTIAL AT PLAYA FLAMENCA!!!

Location

Estate Agent

Mats Norell
Mats Norell

MD & Director at Viking Homes

  • de
  • en
  • es
  • fr
  • se

Make an enquiry

Data Controller: Viking Homes, Purpose of Processing: Management and control of the services offered through the Real Estate Services website, Sending information via newsletter and others, Legal Basis: By consent, Recipients: Data will not be shared, except for accounting purposes, Rights of Interested Parties: Access, rectify, and delete data, request its portability, object to processing, and request its limitation, Source of Data: The Data Subject, Additional Information: You can consult additional and detailed information on data protection Here.
WhatsApp Contact us today