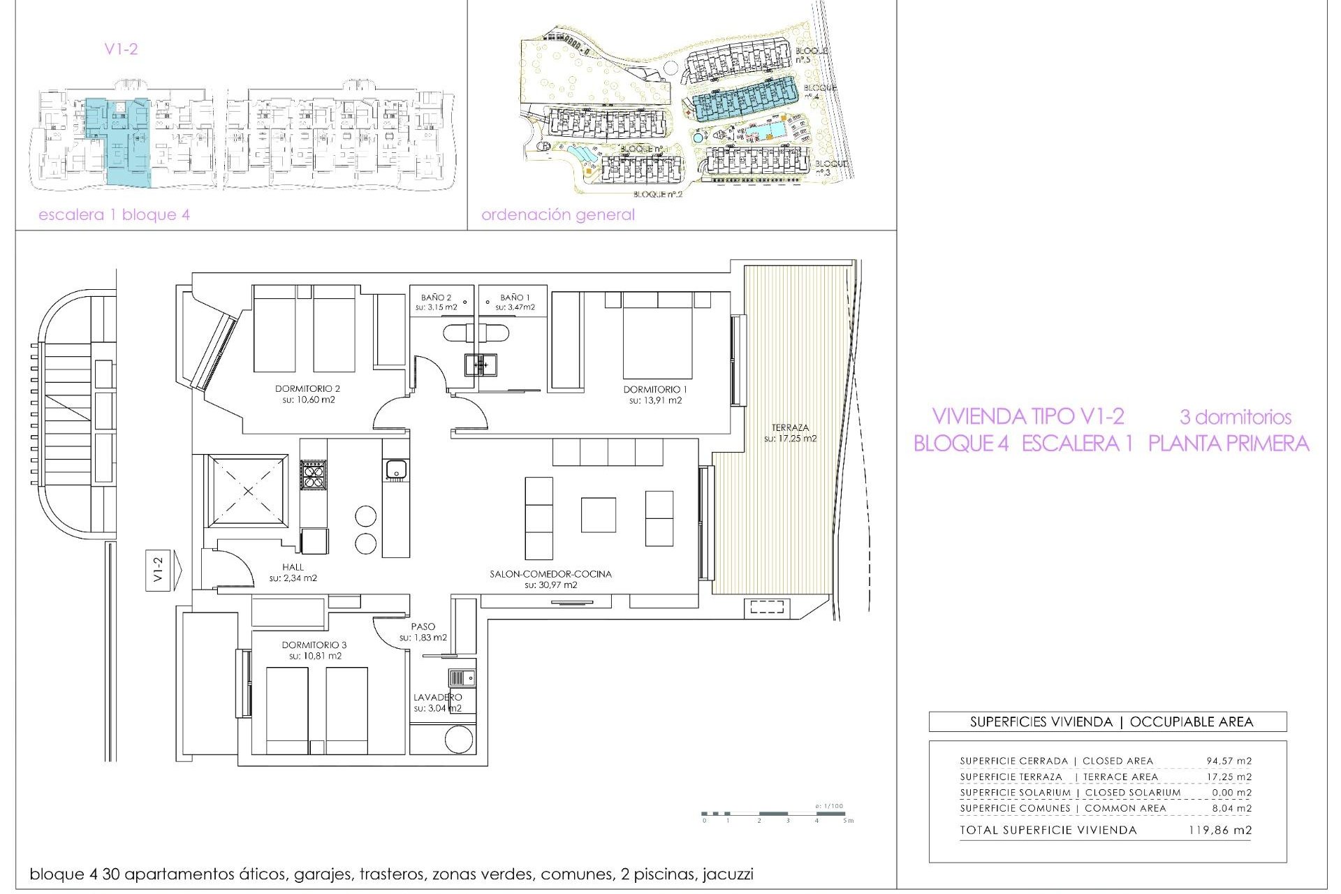
Lägenhet · Nybyggnation Orihuela Costa. Alicante

REF:NB-35922
469.000€

Lägenhet · Nybyggnation Orihuela Costa. Alicante

469.000€

Översikt

  • 94m2
  • 3
  • 2
  • Ja

Beskrivning

Lägenhet · Nybyggnation Orihuela Costa. Alicante

Plats

Fastighetsmäklare

Mats Norell
Mats Norell

VD och Direktör på Viking Homes

  • de
  • en
  • es
  • fr
  • se

Gör en förfrågan

Ansvarig för behandlingen: Viking Homes, Syftet med behandlingen: Hantering och kontroll av tjänster som erbjuds via fastighetstjänsters webbplats, Utskick av information via nyhetsbrev och andra, Laglighet: Genom samtycke, Mottagare: Uppgifterna lämnas inte ut, förutom för bokföring, Registrerades rättigheter: Tillgång, rättelse och radering av uppgifter, begäran om portabilitet, invändning mot behandlingen och begäran om begränsning av denna, Källa till uppgifterna: Den registrerade själv, Ytterligare information: Du kan läsa ytterligare och detaljerad information om dataskydd Här.
WhatsApp Kontakta oss idag