Turistlägenheter nära stranden i Lo Pagán-San Pedro del Pinatar: Investeringsmöjlighet på Costa Cálida
Förstklassigt läge vid kusten i Lo Pagán
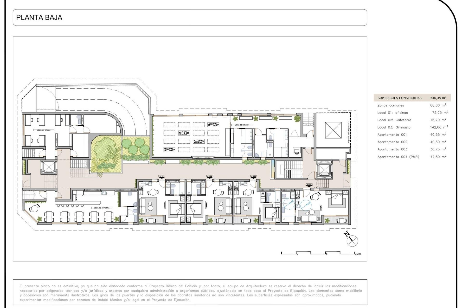
Upptäck detta nya bostadsprojekt med 44 fullt möblerade turistlägenheter i Lo Pagán, San Pedro del Pinatar, en av de mest populära destinationerna på Costa Cálida. Bara 800 meter från stranden erbjuder detta bostadskomplex den perfekta balansen mellan avkoppling, kustliv och investeringspotential. Området är känt för sin närhet till både Mar Menor och Medelhavet, med lugna vatten, småbåtshamnar och ett brett utbud av vattensporter. Lo Pagán har också en livlig strandpromenad med restauranger, kaféer och butiker, samt de berömda naturliga lerbaden som lockar besökare året runt.
Moderna lägenheter utformade för komfort och flexibilitet
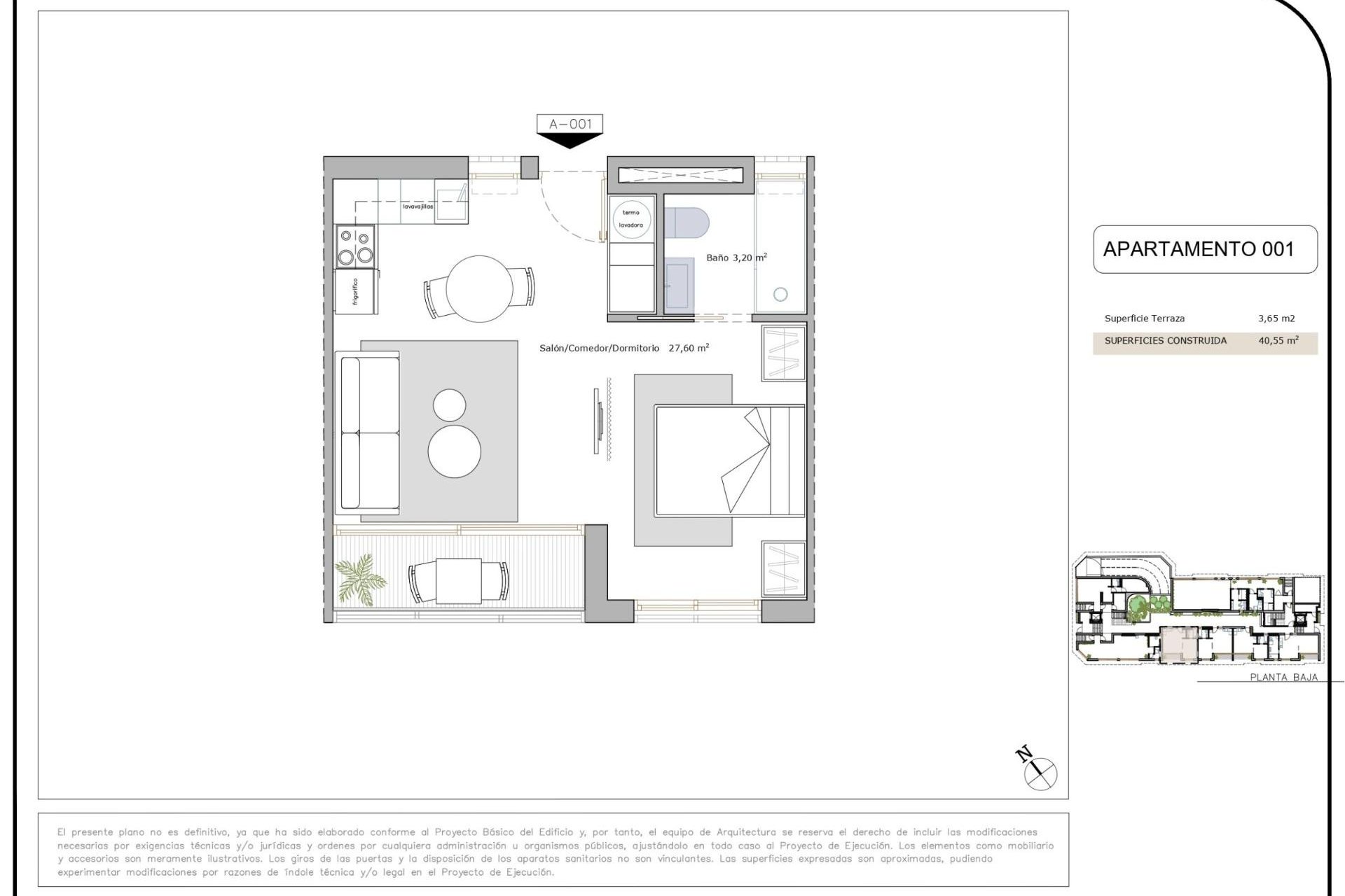
Projektet erbjuder en mängd olika planlösningar för att passa olika behov. Köpare kan välja mellan rymliga studiolägenheter med 1 badrum och terrass, eller större lägenheter med 2 sovrum och 2 badrum, inklusive ett badrum i anslutning till sovrummet, alla med privata utomhusterrasser. Varje lägenhet har noggrant utformats för att maximera komfort, funktionalitet och naturligt ljus.
Alla bostäder levereras fullt möblerade och utrustade med vitvaror, vilket gör dem redo för omedelbar inflyttning eller uthyrning. Interiören präglas av en modern stil med högkvalitativa ytbehandlingar, vilket garanterar en bekväm och stilfull boendemiljö bara några minuter från havet.
Högkvalitativa funktioner och smart boende
Dessa lägenheter har fullt installerad luftkonditionering, aerotermiskt system för varmvatten och fullt utrustade badrum med möbler, speglar och duschväggar. Dessutom har byggnaden och de enskilda bostäderna smarta låssystem, vilket ökar säkerheten och bekvämligheten. Vissa lägenheter har även parkeringsplatser i källaren eller utomhus samt förråd, beroende på fastigheten.
Resortliknande bekvämligheter för avkoppling och välbefinnande
Boende och gäster kan njuta av utmärkta gemensamma faciliteter, inklusive en takpool med solterrass, perfekt för avkoppling under Medelhavssolen. Anläggningen har även ett gym och ett café på plats, vilket skapar en bekväm och social miljö som är idealisk för både semester och längre vistelser.
Utmärkta förbindelser och sevärdheter i närheten
Lo Pagán-stranden 0,8 km
Mar Menor 0,8 km
San Pedro del Pinatar centrum 2 km
Dos Mares Shopping Center 3 km
Lo Romero Golf 10 km
Murcias internationella flygplats 35 km
Alicantes flygplats 75 km
San Pedro Marina 2 km
Smart investering med uthyrningsförvaltning
Dessa turistlägenheter erbjuder en utmärkt investeringsmöjlighet, med avdragsgill moms och ett professionellt förvaltningsbolag som sköter uthyrningen när fastigheten inte används. Detta garanterar en bekymmersfri ägarupplevelse och attraktiva hyresintäkter.
Säkra din fastighet på Costa Cálida
Oavsett om du letar efter ett fritidshus, en hyresinvestering eller båda, erbjuder dessa lägenheter i Lo Pagán läge, kvalitet och lönsamhet. Kontakta oss idag för mer information eller för att boka en visning och säkra din nya fastighet vid havet.
236