Nybyggd villa i Ibiza-stil under uppförande i Javea
Modernt medelhavsliv nära El Arenal-stranden
Denna nybyggda villa i Ibiza-stil i Javea är för närvarande under uppförande med kort leveranstid. Fastigheten ligger bara 3 km från El Arenal-stranden, ett av de mest populära och livliga områdena på norra Costa Blanca, och kombinerar medelhavscharm med modern elegans. Javea är känt för sina kristallklara vikar, naturparker, småbåtshamnar, traditionella gastronomi och avslappnade livsstil vid kusten, vilket gör det till en exceptionell plats att bo eller investera i.
Elegant arkitektur inspirerad av Ibiza och Medelhavet
Villan utmärker sig med sin vita fasad, rundade hörn och handskurna accenter i Montgó-sten som tillför värme och äkthet. Högkvalitativa ytbehandlingar som mikrocementgolv, dubbelglasade aluminiumfönster i rostfärger och svarta kranar i badrummen bidrar till en raffinerad och modern atmosfär. Alla sovrum är utrustade med elektriska ytterpersienner för att garantera komfort och integritet.
Rymliga interiörer utformade för komfort
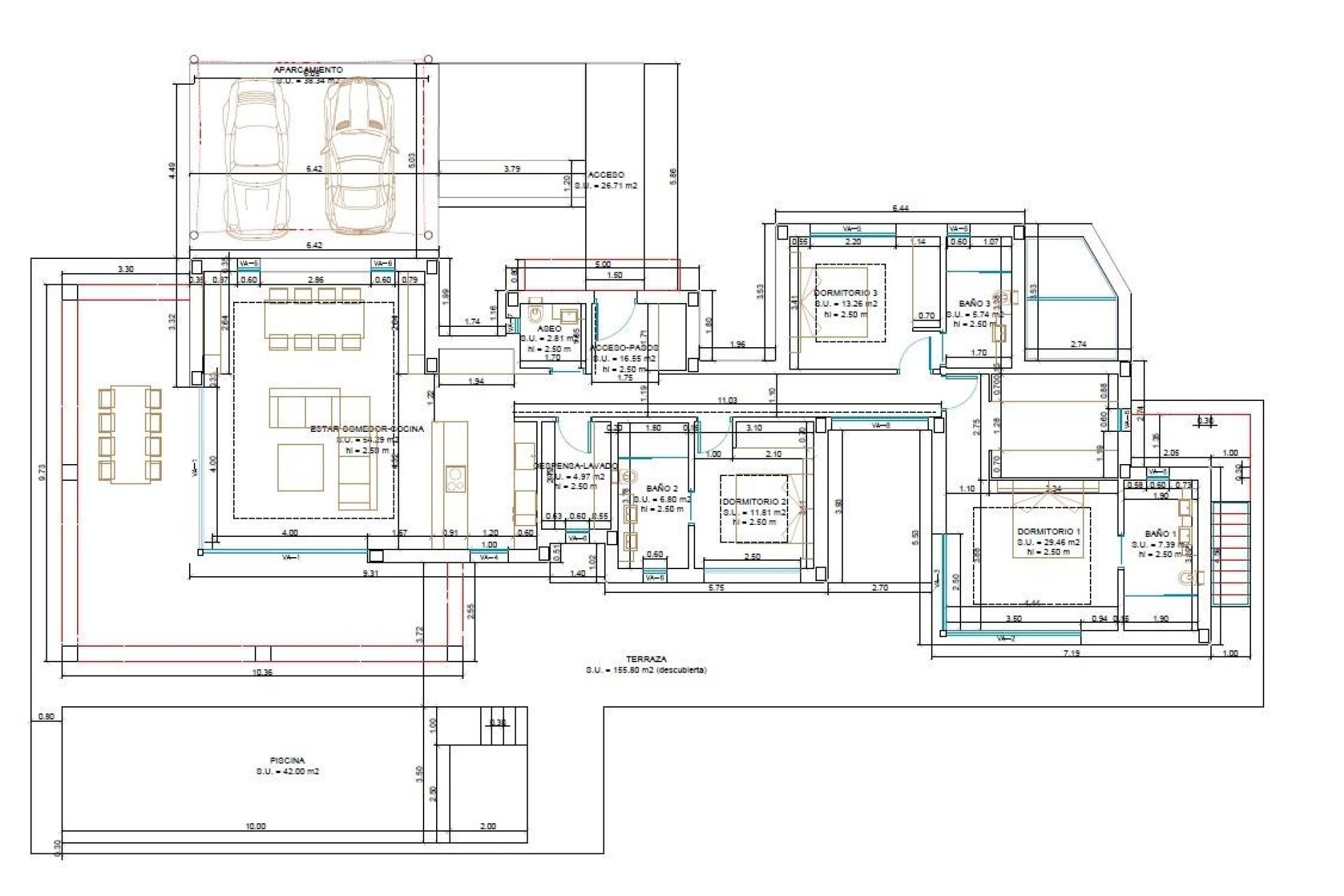
Inuti erbjuder villan ett ljust och rymligt vardagsrum med matplats och direkt tillgång till utomhusterrasserna och den söderläge poolen, så att du kan njuta av solljus hela dagen. Det moderna öppna köket är fullt utrustat och kompletteras av en angränsande tvättstuga och en gästtoalett.
Sovområdet består av tre dubbelrum, alla med eget badrum. Master bedroom har ett omklädningsrum för extra bekvämlighet och stil.
Extra fristående lägenhet och utomhusvardagsrum
På nedre våningen finns en separat lägenhet på 37 m² med ett sovrum och ett badrum, perfekt för gäster eller släktingar. Utomhusområdena är utformade för att kunna användas året runt, med stora soliga terrasser, utsikt över bergen och två täckta parkeringsplatser under en elegant pergola.
Villan är utrustad med golvvärme och luftkonditionering, vilket garanterar maximal komfort under alla årstider. Från fastigheten kan du beundra de omgivande gröna bergen och det ikoniska berget Montgó, ett av Javeas mest kända landmärken.
Utmärkt läge i Javea
Viktiga avstånd från villan:
El Arenal-stranden 3 km
Javeas hamn och marina 7 km
Javeas golfklubb 3 km
Alicantes flygplats 100 km
Valencia flygplats 125 km
Ditt medelhavshem väntar
Denna villa är det perfekta valet för dig som söker en lyxig bostad, ett semesterhus eller en säker investering på Costa Blanca. Kontakta oss idag för att boka en visning och upptäck denna exceptionella fastighet i Javea.
236